Zabytki architektury

Architektura

Zegary wieżowe

Wzornictwo

  • inwentaryzacje obiektów zabytkowych

  • projekty przebudowy istniejących obiektów zabytkowych

  • projekty szeroko rozumianej przebudowy, nadbudowy i rozbudowy zabytków

  • projekty zmiany sposobu użytkowania zabytkowego obiektu

  • nadzorowanie remontów

  • sprawdzanie projektów budowlanych

  • kierowanie robotami budowlanymi w obiektach zabytkowych

Kostrzyn nad Odrą - Stare Miasto.

Inwentaryzacja konserwatorska murów kurtynowych i podziemi twierdzy kostrzyńskiej (1997 r.).

Lubeka (Niemcy), kamienice przy Untertrave 52 i 53.

 

1995 r. Projekty koncepcyjne odbudowy zabytkowych kamienic na Starym Mieście.

Szczecin - Podzamcze (1996 r. - 1999 r.).

Projekt i realizacja detali architektonicznych kamienicy przy ul. Siennej 5, 5a w kwartale nr 17.

Urząd Wojewódzki w Szczecinie, ul. Wały Chrobrego 1.

 

Projekt techniczny rewaloryzacji figury marynarza na iglicy wieży obserwacyjnej (1983/1984 r.).

Stralsund (Niemcy), kamienice przy Ossenreyerstr. 1 i 2.

 

Na pierwszym piętrze, w salonie, kamienicy nr 1 zrekonstruowano tapety malowane na płótnie przez niemieckiego malarza Jacoba Philipe Hackerta (1737-1807). Jest to malarstwo iluzoryczne przedstawiające okna z widokami pejzaży. Tapety zostały, po konserwacji, zamontowane jako odizolowane od ścian, aby zrekompensować kurczenie i rozszerzanie się materiału tapet niezależnie od ścian. Na rysunkach przedstawiono bezszwowy sposób łączenia poszczególnych brytów tapet.

Stralsund (Niemcy), kamienice przy Ossenreyerstr. 1 i 2.

 

1984 r. - 1985 r. Projekt techniczny adaptacji kamienicy nr 1 na cele  Miejskiego Ośrodka Kultury i bibliotekę dziecięcą. Kamienica nr 2 projektowana od podstaw, przeznaczona na mieszkania (współautorstwo).

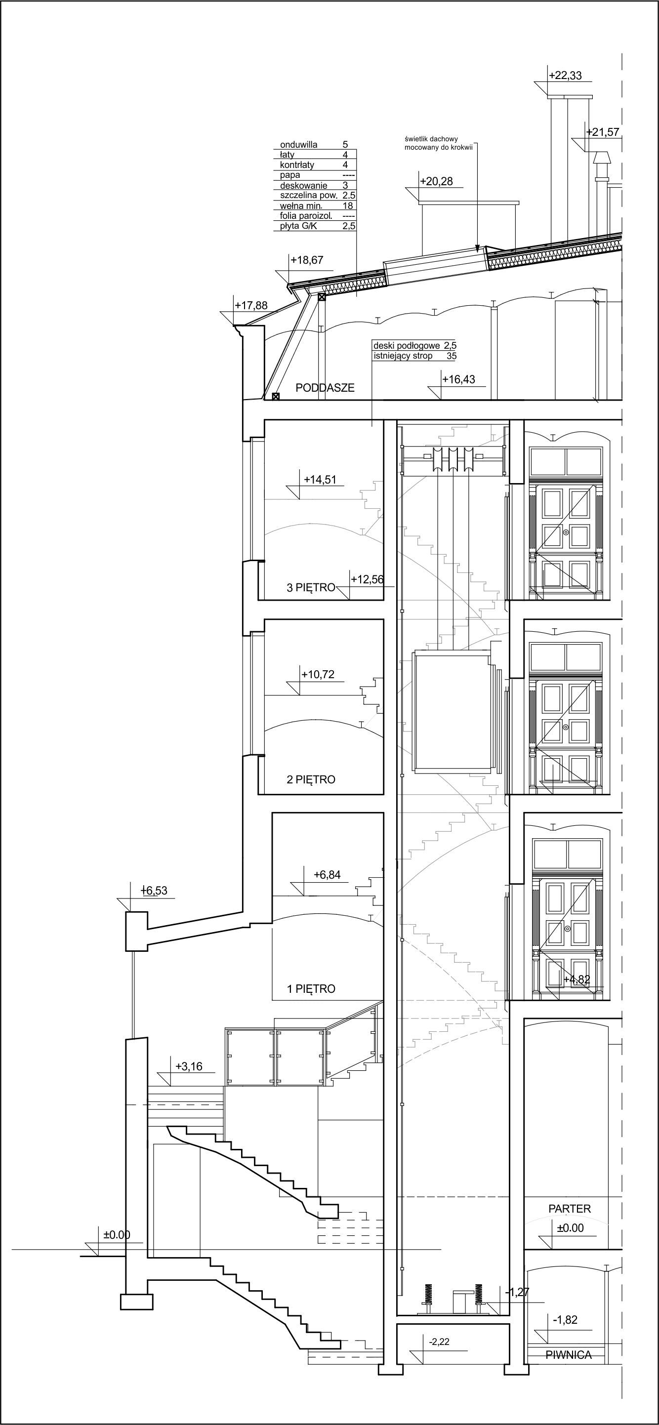
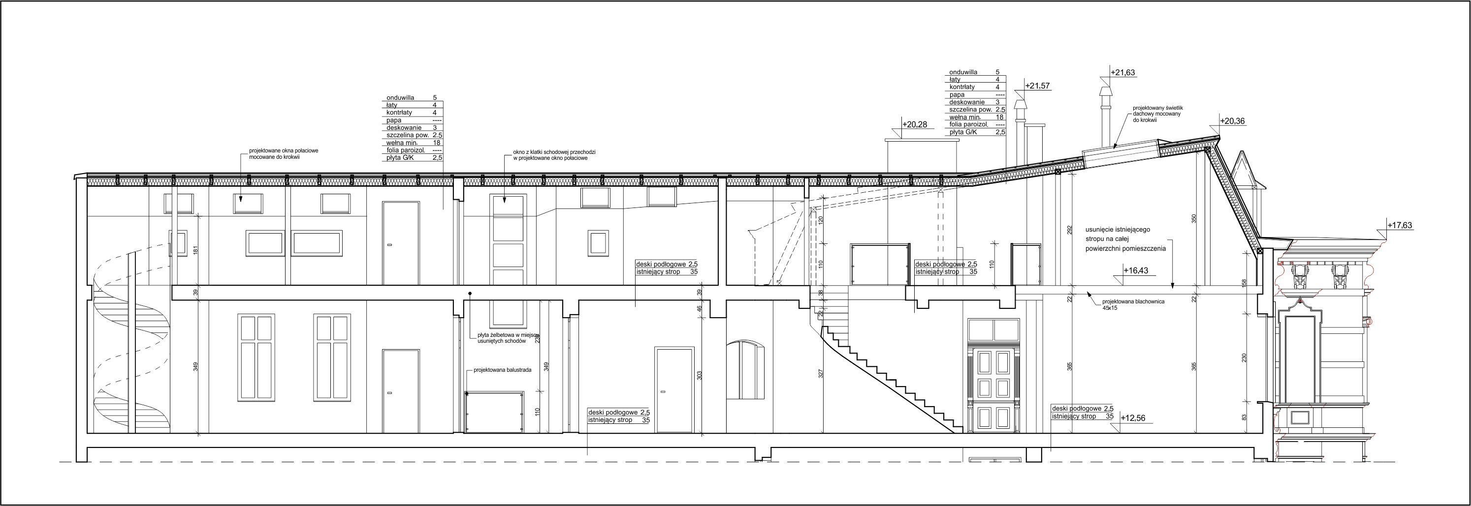
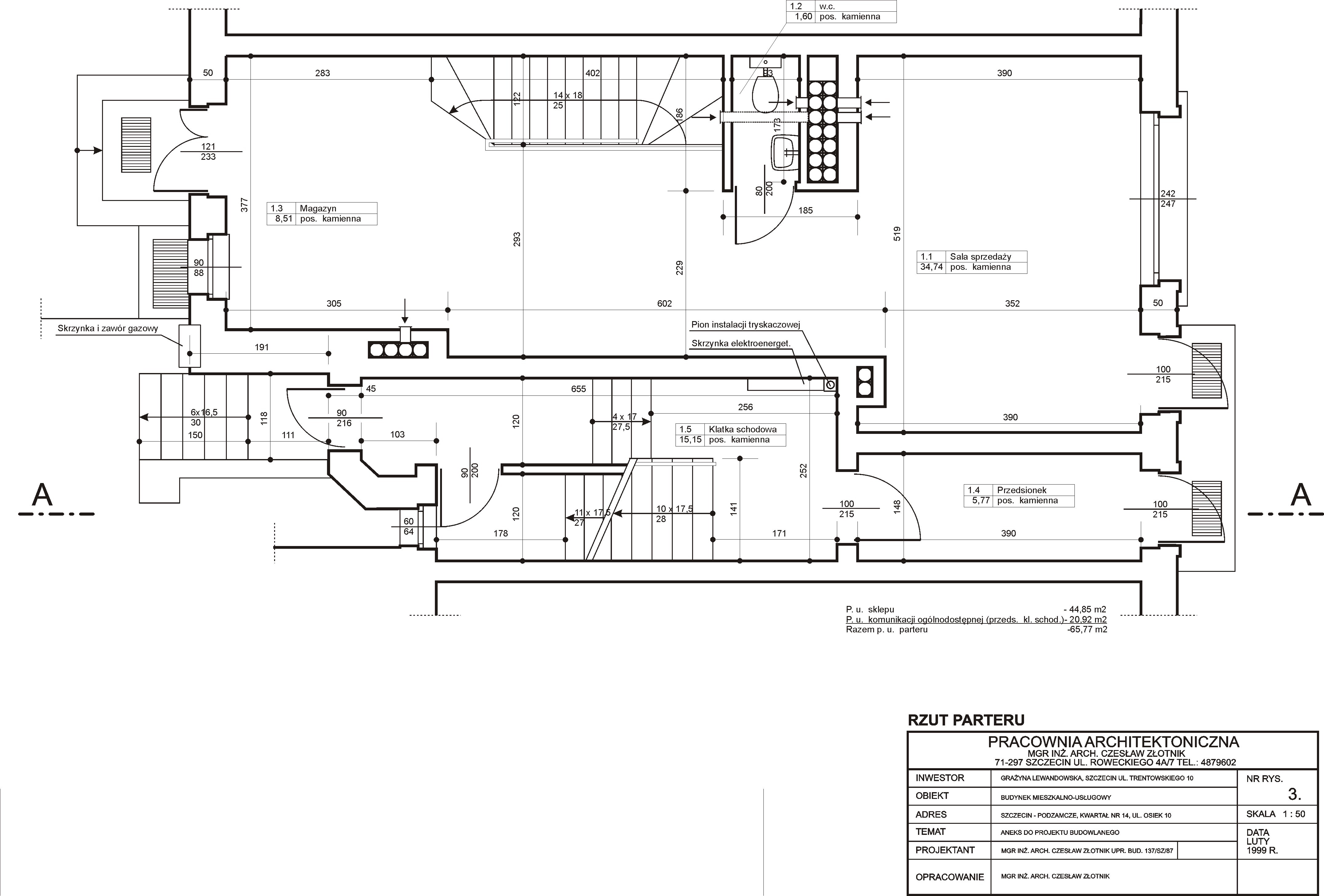
Szczecin - Podzamcze, ul. Osiek 10.

Kamienica na szczecińskim podzamczu odbudowana według mojego projektu w latach 90' XX wieku.

Szczecin - adaptacja części kamienicy z początku XIX w. na studio fotograficzne.

Projekt przebudowy ostatniej kondygnacji kamienicy.

Inwentaryzacja pomp ręcznych Szczecina.

Na terenie Szczecina zachowało się 17 tego typu pomp. Obecnie wiele z nich jest sprawnych i pełnią funkcję awaryjnego ujęcia wody do celów gospodarczych.

Drezdenko.Projekt remontu i przebudowy zabytkowego budynku mieszkalnego przy ul. Żeromskiego 11 (1998 r.).

Stepnica.Projekt rekonstrukcji wieży po pożarze w 1997 r.

Projekt remontu kościoła p.w. Św. Jacka.

Międzyzdroje - projekt konserwatorski remontu wiaty peronu przystanku kolejowego.

Trzcińsko Zdrój - projekt budowlany i konserwatorski remontu kościoła parafialnego.

Moryń - projekt budowlany i konserwatorski remontu kościoła parafialnego.

Szczecin - projekt remontu barokowej fontanny - pomnika Orła Białego.

Przebudowa prezbiterium kościoła parafialnego w Węgorzynie.

Remont kościoła filialnego w Przytoni (parafia Węgorzyno).

Wymiana podwalin, odnowienie elewacji, remont dachu, wymiana posadzki.

Szczecin - kamienica z początku XX w. przy ul. Jagiellońskiej.

Inwentaryzacja więźby dachowej jako jeden z materiałów wyjściowych do sporządzenia ekspertyzy technicznej budynku.

Inwentaryzacja konserwatorska pałacu w Miłachowie przy użyciu technik fotogrametrycznych.

Wełtyń.

Projekt rekonstrukcji sufitu kościoła parafialnego.

Osiek nad Notecią, gm. Wyrzysk, Skansen Muzeum Okręgowego w Pile, wiatrak typu holender. 

 

Projekt rekonstrukcji mechanizmów wiatraka przeniesionego z Gromadna i odtworzonego na terenie skansenu.

Bobowicko koło Międzyrzecza. Barokowy dworek w trakcie odbudowy po pożarze z 1975 r. - nadzór nad odbudową i remontem w 1984 r.