Zegary wieżowe

Architektura

Zabytki architektury

Wzornictwo

  • remonty, przywracanie do życia, konserwacja i opieka nad zabytkowymi zegarami wieżowymi

  • projekty remontów i nowych części do zabytkowych zegarów wieżowych

  • pełna dokumentacja konserwatorska wraz z instrukcją obsługi i konserwacji zabytkowych zegarów wieżowych

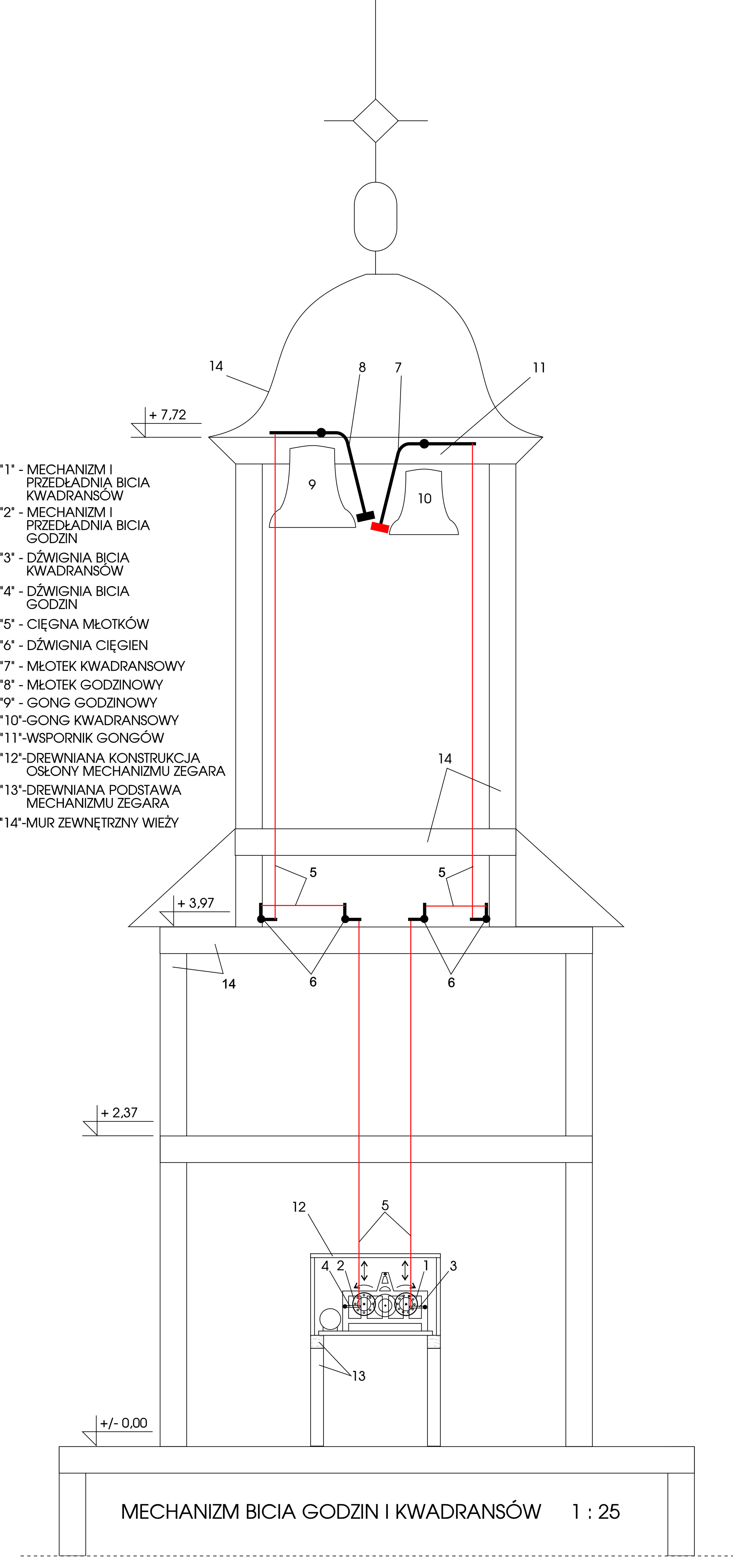
Gorzów Wielkopolski - zakon Oblatów.

Fragmenty dokumentacji dotyczącej remontu zegara wieżowego. Remont wykonany wspólnie z firmą REK Jerzego Jurkiewicza ze Szczecina.

Międzyrzecz - Obrzyce, zegar na wieży ciśnień na terenie szpitala.

Remont zegara wraz z firmą REK Jerzego Jurkiewicza ze Szczecina.

Szczecin, Muzeum Techniki i Komunikacji Zajezdnia Sztuki.

Chód zegara.

Szczecin, Muzeum Techniki i Komunikacji Zajezdnia Sztuki.

Remont zegara usytuowanego na elewacji frontowej muzeum.

Gorzów Wielkopolski - zakon Oblatów.

Chód zegara.

Pęzino - kościół parafialny.

Chód zegara.

Drezdenko - Ratusz.

Chód zegara.

Drezdenko - Ratusz.

Wyremontowany zegar na wieży Ratusza - starostwa powiatowego. Remont wykonany wspólnie z firmą REK Jerzego Jurkiewicza ze Szczecina.

Szczecin osiedle Krzekowo - kościół parafialny.

W 2014 r. rozpoczęliśmy prace dokumentacyjne, mające na celu wpisanie zegara do rejestru zabytków. W dalszej kolejności rozpoczniemy prace zmierzające do remontu i uruchomienia mechanizmu.

Kamień Pomorski - katedra.

Prace przy nowym pręcie wahadła.

Kamień Pomorski - katedra.

Chód zegara.

Kamień Pomorski - katedra.

 

Pierwsza w Polsce synchronizacja zegara wahadłowego z zegarem elektronicznym odbierającym radiowy sygnał czasu z Mainflingen (Niemcy). To przedsięwzięcie wykonaliśmy wspólnie z firmą REK Jerzego Jurkiewicza ze Szczecina.

Trzcińsko Zdrój - kościół parafialny.

 

Remont zegara wraz z renowacją tarcz (jedna z naszych pierwszych zegarowych realizacji).

Suchań - kościół parafialny.

 

Zegar zegar wybija godzinę 12:00.

Suchań - kościół parafialny.

 

Zegar ten ma wyjątkowy mechanizm, który zachował się w doskonałym stanie technicznym. Posiada niemal wszystkie oryginalne części.

W połowie 2015 r. rozpoczęliśmy prace mające na celu uruchomienie zegara i remont tarcz. Na wieży zamontowane są cztery drewniane tarcze sprzed ponad 150 lat.

Myślibórz - kościół parafialny.

 

Kompleksowy remont zegara wieżowego wraz z czterema tarczami.

Niewiadowo - kościół filialny parafii w Goleniowie.

 

Remont zegara wieżowego - przygotowanie do montażu tarcz na wieży.

Nowe Warpno - ratusz.

 

Remont zegara wieżowego i dwóch tarcz.

Trzebiatów - ratusz.

 

Remont mechanizmu zegara.

Zamek Książąt Pomorskich w Szczecinie - mechanizm zegara.

 

Zegar zamkowy właśnie wybił godzinę czternastą.

Zamek Książąt Pomorskich w Szczecinie - wieża zegarowa z tarczą i zegarem.

 

Największa z naszych dotychczasowych realizacji. Remont mechanizmów zegara przeprowadziliśmy w 2005/2006 r. Podczas remontu wykonaliśmy szczegółową dokumentację konserwatorską. Tarcza zegarowa zajmuje prawie trzy kondygnacje wieży i została wyremontowana przez Pracownię Konserwacji Dzieł Sztuki działającą przy Zamku Książąt Pomorskich w Szczecinie.

 

Za remont mechanizmów zamkowego zegara otrzymaliśmy nagrodę i wyróżnienie w ogólnopolskim konkursie "Modernizacja Roku 2006".