Architektura

Zabytki architektury

Zegary wieżowe

Wzornictwo

Architektura

  • projektowanie nowych obiektów budowlanych

  • projekty przebudowy istniejących istniejących obiektów budowlanych

  • dostosowywanie i adaptacja projektów gotowych do warunków miejscowych

  • projekty przebudowy, nadbudowy i rozbudowy dowolnych obiektów budowlanych

  • inwentaryzacje budynków i budowli

  • projekty zmiany sposobu użytkowania całości lub części budynków

  • nadzorowanie procesu budowlanego

  • sprawdzanie projektów budowlanych

  • sporządzanie kosztorysów inwestorskich

  • wykonywanie specyfikacji technicznych robót budowlanych

Projekt koncepcyjny domu wielorodzinnego w Szczecinie.

Projekt koncepcyjny domu wielorodzinnego w Szczecinie.

Projekt koncepcyjny domu wielorodzinnego w Szczecinie.

Projekt koncepcyjny budynku urzędu marszałkowskiego w Szczecinie.

Przebudowa domu wraz z przylegającą do niego stodołą. Stodołę oraz starą część poddasza przeprojektowano, tworząc duży i komfortowy dom.

Projekt drogowego przejścia granicznego Świnoujście - Garz (2004 r.).

Budynek polskich służb granicznych.

Projekt koncepcyjny budynku Urzędu Marszałkowskiego w Szczecinie

Projekt wykonany przez Leszka, na studiach, w ramach przedmiotu Projektowanie Specjalistyczne.

Projekt koncepcyjny domu wielorodzinnego w Szczecinie.

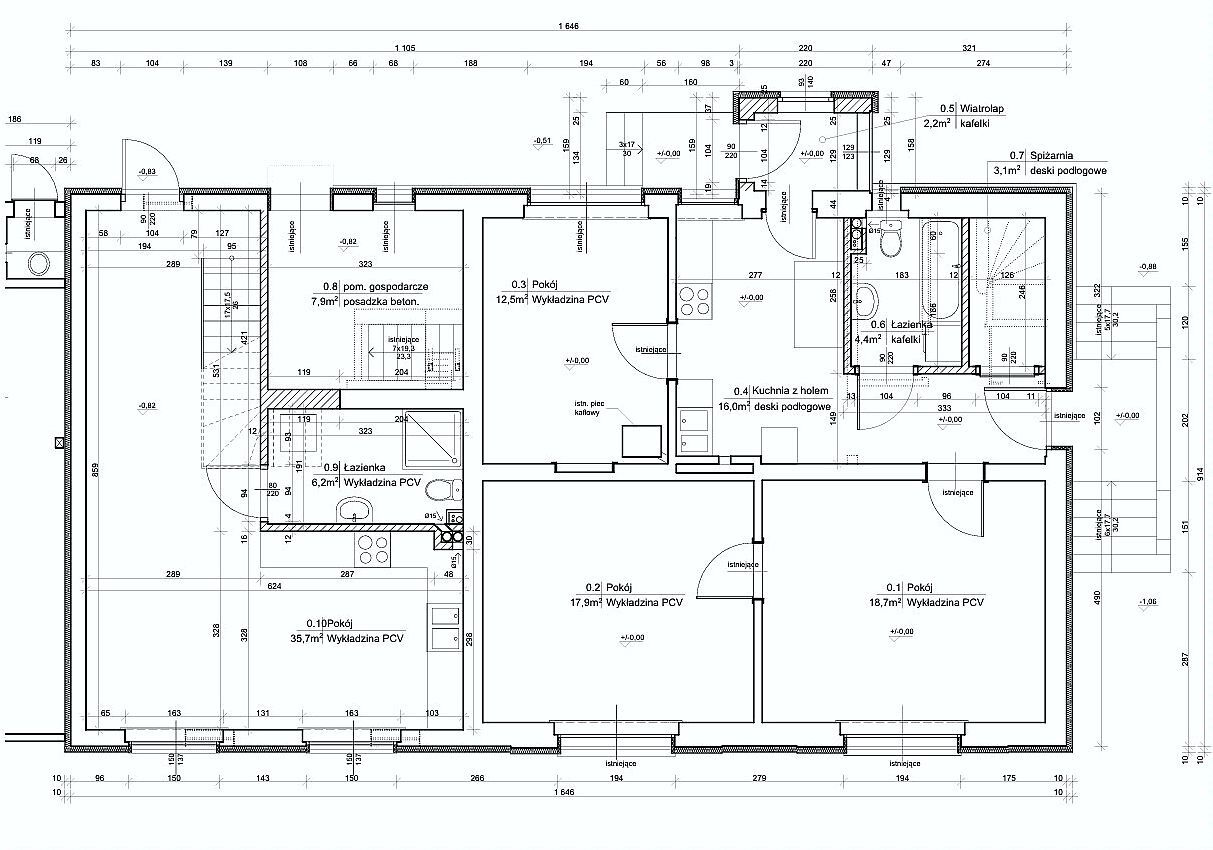
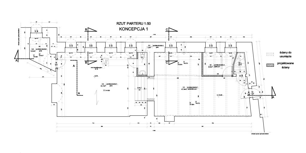
Gimnazjum nr 2 w Szczecinie. Inwentaryzacja wraz z projektem przebudowy fragmentu parteru gimnazjum.

Parsów. Projekt przebudowy i nadbudowy domku jednorodzinnego.

Kołobrzeg - projekt portu jachtowego przy ul. Warzelniczej (1999 r. - 2000 r.).

Studium krajobrazowe zespołu przyrodniczo - krajobrazowego "Jezierzyce" - opracowanie urbanistyczne (współautorstwo 1996 r.).